ALIPLAST GENESIS 75

Il profilo Genesis 75 è un sistema destinato alla progettazione di serramenti di edifici ad uso pubblico, edifici residenziali unifamiliari e plurifamiliari.

Utilizza materiali isolanti moderni, attualmente nuovi sul mercato. Accanto alla classica guarnizione centrale della finestra è stata progettata una guarnizione termica aggiuntiva. Grazie a questa soluzione, è stata raggiunta un’altissima tenuta in termini di permeabilità all’aria e tenuta all’acqua, oltre ad un aspetto e un’estetica innovativi.

Il profilo Genesis 75 si basa sui profilati profondi da 75 mm, grazie ai quali è possibile costruire vari tipi di finestre, porte esterne e vetrine. Per questo motivo, viene spesso utilizzato negli edifici ad uso pubblico. Tuttavia, grazie alle sue caratteristiche di elevato risparmio energetico, è spesso utilizzato per progetti individuali.

Il coefficiente di scambio termico per il modello Genesis può raggiungere anche Uf = 0,84 W/m2*K, stabilendo un nuovo standard di isolamento pur mantenendo la massima ergonomia di utilizzo.

La vetratura con uno spessore da 24 mm a 56 mm è fissata e sigillata nei battenti usando battiscopa realizzati con profili in alluminio e con guarnizioni resistenti in gomma EPDM.

Perchè scegliere il profilo in alluminio Aliplast Genesis 75?

  • Prodotto altamente innovativo;
  • Infissi certificati a livello internazionale;
  • Certificati per ottenere le agevolazioni sulle detrazioni fiscali.

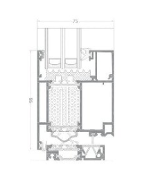
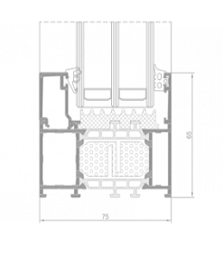
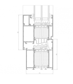
Dettagli tecnici

Profili ante

SEZIONI TRASVERSALI DEL PROFILO

I nostri prodotti in alluminio

Agenzia di rappresentanza

After Hours Consulting è un’azienda specializzata nella distribuzione e consulenza di serramenti proponendo le migliori soluzioni, con infissi e porte di prima qualità.

La nostra profonda conoscenza del settore RISPARMIO ENERGETICO e SICUREZZA, ci ha aiutato a selezionare i migliori prodotti presenti sul mercato che rispondono ai bisogni dei clienti di oggi.
Queste soluzioni le permetteranno di:

  • Aumentare
    la produttività riducendo i tempi di consegna;
  • Aumentare
    la soddisfazione del cliente;
  • Aumentare
    la clientela grazie a prezzi competitivi e prodotti di qualità.

Perché scegliere noi?

10 anni di esperienza nel campo della vendita di serramenti

Contattaci

Richiedi un preventivo o una consulenza gratuita.

Se desideri anche tu acquistare prodotti certificati di qualità con tempi di consegna più rapidi rispetto al mercato e a prezzi competitivi compila il modulo sottostante.

Sarai ricontattato dal nostro team di esperti e insieme potremo condividere con voi possibili soluzioni.

Contattaci subito!